Recent Work

Loft Conversion & Kitchen Extension

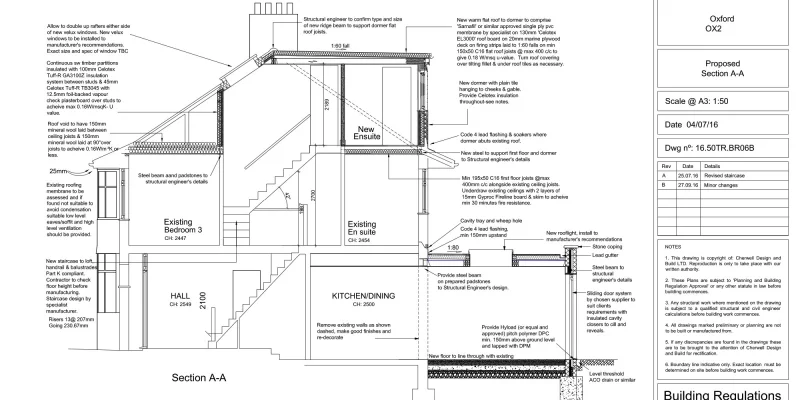
North Oxford

We recently obtained planning consent for an exciting scheme to extend this family home in North Oxford and we’re hoping to commence the build soon. We’ve been able to create a second floor to this dwelling by extending the existing loft in two directions – a hip-to-gable and a rear dormer roof extension. Then, over the ground floor, we’ve extended to the side, wrapping round to the rear with a single storey extension, which dramatically increases the ground floor footprint and offers a fantastic kitchen/dining/living space connected to a south-facing garden offering plenty of natural light and a vast sense of space.

Want to know more?
Our team are on hand to discuss your requirements, saving you time and stress and bringing your ideas to life.
Previous Next
Close
Test Caption
Test Description goes like this